lieu               Pau PYRENEES-ATLANTIQUE

 

mission       étude urbaine

 

montant     50 000 € HT

 

 

Afin de répondre au mieux aux enjeux urbains portés par le projet d’aménagement du Hédas, et compte tenu de la diversité des enjeux et des interrogations du Maître d’Ouvrage sur la vocation du quartier, la Ville de Pau a choisi de confier des études urbaines de faisabilité à trois équipes.

L’étude de définition avait pour but d’aider à mieux définir les options du programme urbain, de conseiller la collectivité sur certains choix stratégiques et de proposer des réflexions supplémentaires sur des questions encore peu ou mal définies.

 

Les 3 premières phases d’études (Diagnostic multicritères, Définition des enjeux, Traduction des enjeux en éléments de programme) ont été menées conjointement par les 3 équipes urbaines (atelier architecture et territoires, Obras, D’une ville à l’autre).

 

Une démarche de concertation auprès des habitants a été conduite. Elle a donné lieu à des ateliers de travail et à des présentations publiques au cours des différentes phases de l’étude.

 

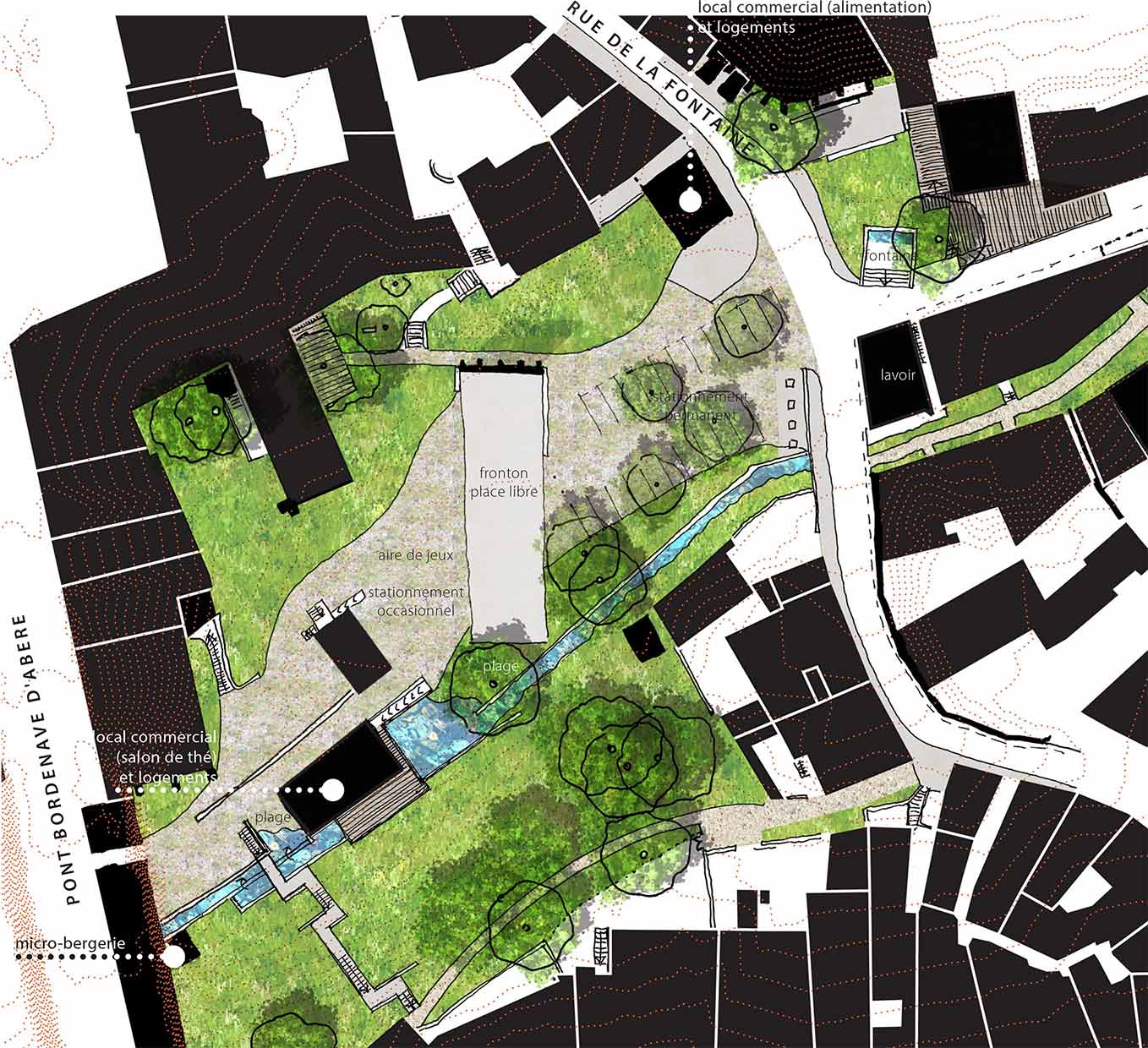
Le quartier du Hédas constitue, dans le centre ville de Pau à l’allure majestueuse malgré les problématiques économiques, sociales et urbaines dont il fait l’objet, un espace atypique du fait de sa configuration, son histoire, ses pratiques et ses paysages. Le caractère mystérieux, sauvage et poétique du Hédas nous a révélé ses richesses, ses contrastes, ses complexités, qui en font un quartier aux multiples identités. Il faut du temps pour comprendre ces différents visages du Hédas.

bruggeman dessein d'architecture

retour accueil ▲